Брендовые котлы Mora чехословацкого производителя теплосилового и водопроводного оборудования обладают высоким уровнем комфорта и адаптированы к условиям работы системы ЖКХ в России, характеризующейся низким давлением газа и перепадами напряжения в электросети. Газовый агрегат эффективно управляет процессом нагрева воды для обеспечения услуг по отоплению и горячему водоснабжению. Он оборудован комплектом регулировочных устройств Mertik, состоящим из водопроводной и газовой арматуры.
Устройство начинает работу включением главной горелки, которая разжигается пьезозапальником в зависимости от скорости циркуляционной воды, начиная с 5,5 л/мин. Этот показатель соответствует минимальной мощности агрегата, номинальная достигается при протоке 8 л/мин. Агрегат поставляется без функции Вy-pass, поэтому при запуске системы оставляют открытым вентиль хотя бы на одном радиаторе. Регулировка технологическим процессом протекает в нескольких режимах, но стартует всегда одинаково — с включения насоса.

Основная регулировка производится капиллярным термостатом в диапазоне сетевой воды 7–77 °C. Более эффективная регулировка будет выполняться комнатным термостатом 220 В, в зависимости от установленной пользователем температуры внутреннего воздуха в помещении. При этом этот термостат подключается последовательно с капиллярным.
Для подготовки ГВС котел Mora TOP можно присоединить к бойлеру косвенного нагрева при помощи дополнительного оборудования. В этом случае регулирование происходит на основании требования, поступившего от термостата ГВС бойлера (ON/OFF). Капиллярный и комнатный термостат остаются неподключенными, температура воды регулируется на уровне 85 °C. Если капиллярный установлен на позиции «снежинка», агрегат находится в режиме защиты от замерзания, и как только температура сетевой воды опустится ниже, начнется циркуляция воды внутреннего контура с подогревом.
Основные виды газовых котлов Mora TOP
Основные модификации газовых агрегатов разделяются по принципу установки – настенные и напольные, по конструкции топки — открытые и закрытые, по способу вывода дымовых газов существует три варианта.

Разновидности MORA-TOP TITAN:
- Устройство с атмосферным горелочным устройством и выбросом дымовых газов в дымоход, в исполнении B11BS. Котел в работу не запустится без рабочего давление сетевой воды. Это базовый вариант, поставляется с ограничителем температуры в бойлере, который не допускает перегрева воды и отключает подачу газа.
- Газовый котел «Мора» атмосферного типа комплектуется термоэлементом, расширительным бачком в системе отопления и предохранителем обратной тяги, препятствующим утечкам газа в помещении.
- Агрегат с горелкой «Комфорт» снижает температуру уходящих газов в дымоходе за счет установки дополнительного бойлера для выработки тепловой энергии на нужды горячего водоснабжения.
Важно! Котел имеет функцию для предотвращения замерзания воды в контуре отопления. При снижении температуры воды в сетевом контуре ниже +5 °С он начнет греть ее, чтобы обезопасить систему от подмерзания.
Напольные
Атмосферные напольные котлы MORA SА 40 G рекомендуются для отопления объектов, расположенных в районах с нестабильным электроснабжением. Модели серии Classic укомплектованы нержавеющим горелочным устройством, которое устойчиво работает даже с низкими параметрами газа. Они относятся к классу чугунных котлов и зарекомендовали себя надежными, недорогими и достаточно экономичными теплогенераторами.
Обратите внимание! По мнению покупателей, сегодня в России они являются наиболее распространенными среди аналогичных устройств.
Горелочное устройство отличается простотой и эксплуатационной надежностью. Его преимуществом является бесшумная работа и низкая энергоемкость. Разработчики обеспечили котел Mora максимальной устойчивостью к частым перепадам давления в газовой магистрали, включая режимы с низким входным давлением газа.
Долговечность работы устройства обеспечена комплектацией чугунным теплообменником, который не страдает низкотемпературной коррозией, как стальной, и не прогорает, как медный. Агрегат обладает функцией контроля пламени горелки с применением термоэлемента, предотвращающего утечку газа. Предохранитель обратной тяги работает в системе защиты и не допускает попадания дымовых газов в помещение. Электронное регулирование с ограничителем температуры в бойлере контролирует уровень нагрева циркуляционной воды, а в случае перегрева при аварийной ситуации подаст сигнал на клапан-отсекатель для перекрытия поступления газа в котел и вывода его из эксплуатации.
Встроенные функции надежности
Надежность агрегатам такой конструкции обеспечивают следующие функции котлов:
- Защита вторичного бойлера от накипеобразования путем нанесения на поверхность нагрева специального средства.
- Предотвращение замерзания воды внутреннего контура теплонагревателя.
- Гарантированная работа насоса и трёхходового клапана без заклинивания.
- Защита от перегрева бойлера. После прекращения подачи газа насос будет продолжать циркуляцию до допустимого охлаждения среды.
- Устойчивая работа агрегата при параметрах в электрической сети 160–250 В.
Обратите внимание! Когда забит циркуляционный контур, можно обеспечить движение в первичном бойлере байпасной линией.
Настенные
Настенные котлы «Турбо» теплопроизводительностью до 24 кВт выпускаются с закрытой топочной камерой, и «Комби» для совместного отопления и горячего водоснабжения. Устройство соответствует всем последним требованиям отечественного и европейских стандартов в вопросах безопасной и экономичной эксплуатации теплоагрегатов.
Обратите внимание! Основным новшеством является блок управления.

Функциональные возможности:
- защита здоровья жильцов и сохранности имущества;
- пользовательская функция — для настройки комфортных режимов в отапливаемых помещениях;
- функция обеспечения технологического процесса агрегата.
Агрегат имеет большой диапазон регулировки тепловой нагрузки — от 30 % до 100 %. Первоначально газовый котел «Мора» нагревает теплоноситель в контуре на максимальном режиме и далее переходит на эконом-режим.
Обратите внимание! Котел имеет защиту от частых включений / выключений горелочного устройства на низких параметрах работы, когда необходимая отопительная нагрузка ниже нижней границы, например, резкого повышения температуры наружного воздуха в начале или конце отопительного сезона.
Конструкционные преимущества настенных модификаций:
- термостат, для автоматической регулировки работы системы по температуре внутреннего воздуха;
- тихая работа горелочного устройства во время старта и эксплуатации;
- качественная подготовка ГВС с минимальной скоростью потока от 3 л/мин;
- ультратонкая температурная регулировка контура ГВС, независимо от объема и напора исходной воды;
- легкодоступность внутренних элементов котла для технического обслуживания и ремонта;
- ЖК-дисплей блока управления для настройки;
- автоматическая диагностика неисправностей.

Автоматика безопасности:
- встроенный процессор с программным обеспечением для диагностического контроля всех узлов агрегата;
- защита от пуска газа на горелку при низком давлении или отсутствии воды в циркуляционном контуре;
- защита от низких скоростей протока ГВС;
- ионизационный предохранитель контроля утечек газа;
- контроль отрыва пламени.
Дополнительная информация! В программное обеспечение котла включена функция LEGIONELLA, позволяющая включить в систему емкостный водонагреватель.
Технические характеристики газовых котлов «Мора ТОП»
| Наименование показателей | Ед. измерения | Показатель, величина | ||
| Модель | METEOR PLUS 2 KT | TITAN 14SK | MORA SA 40 G | |
| Вид установки | настенный | настенный | Напольный/открытая топка | |
| Сжигаемое топливо | магистральный газ G20 | магистральный газ G20 | магистральный газ G20 | |
| Тепловая мощность | КВт | 23.0 | 14.8 | 35 |
| Давление газа перед горелкой | мбар | 13.0 | 13.0 | 13.0 |
| Давление газа перед соплом | мбар | 10.5 | 6.0 | 3.0 |
| Максимальной расход газа | м³/час | 2.67 | 1.78 | 3.90 |
| Максимальный расход ГВС при Δ 25 °С | л/мин | 13.1 | 10.0 | без ГВС |
| Минимальная скорость воды | л/мин | 3.0 | 3.0 | без насоса |
| Температура уходящих газов | °C | 111.0 | 140 | 150 |
| Допустимый напор насоса | м | 6.0 | 6.0 | без насоса |
| Выход дымовых газов | тип | Турбо | без вентилятора | |
| Диаметр трубы газоотвода | мм | 60/100 | 110 | 145 |
| Электронапряжение | В | 220-230 | 220-230 | 220-230 |
| Частота тока | Гц | 50.0 | 50.0 | 50.0 |
| Потребляемая электромощность на обслуживание агрегата | Вт | 127.0 | 140 | 100 |
| Шумность при работе | дБ | менее 50 | нет | |
| Температура аварийного отключения теплоносителя | °C | 95 | 95 | |
| Размеры: ширина / высота / глубина | мм | 400х750х380 | 380х740х241 | 845х540х151 |
| Вес котла | кг | 33.5 | 17 | 151 |
| Цена по состоянию на 1.06.2019 года | руб. | 29900 | 21200 | 81989 |
Инструкция по подключению и эксплуатации газовых котлов Mora TOP
Перед тем как начинать эксплуатацию котла, производитель настоятельно требует от обслуживающего персонала изучить документ «Мора топ» – газовый котел, инструкция.
Установку и наладку выполняют представители сервисной организации, которая имеет аттестацию завода-изготовителя. После выполнения всего комплекса работ по запуску в эксплуатацию они должны сделать запись в гарантийный талон, без этого гарантия будет недействительна. Мероприятия по запуску должны производиться в соответствии с требованиями нормативных документов по безопасности в газовом хозяйстве РФ.

При вводе в эксплуатацию специалист обязан выполнить следующие этапы:
- проверка герметичности подсоединения воды и газа, надежность электропроводки и контура заземления;
- наладочные мероприятия по котлу;
- диагностика работоспособности всех функций агрегата;
- проверка работы блока автоматики и защиты;
- проведение обучения пользователей с правилами обслуживания и управления работой теплоагрегата.
Отзывы пользователей о газовых котлах Mora TOP
По мнению владельцев, а также по количеству проданных котлов за последние годы, Mora TOP признаны лучшими в рейтинге агрегатов аналогичной мощности. Примечательным является тот факт, что мнения пользователей касаются долгосрочного периода работы котлов, то есть свои положительные качества устройства проявляют не только в первые годы эксплуатации, а на протяжении десятков лет.
Алекснадр В., 47 лет:
«Одноконтурный настенный агрегат MORA TOP, бюджетный вариант, хотя и не уступает в дизайне более дорогим. Монтаж облегченный, вес небольшой, что хорошо для тонких стен, которые распространены в домах в сельской местности. При любом внешнем сбое по газу агрегат останавливается и сам в работу не запускается, что не очень удобно, но зато безопасно. Пламя регулируется очень просто – через пьезорозжиг. Экономичный режим, нагрев дома протекает быстро, и еще очень важное преимущество – факел не задувается от сильного ветра».
Михаил К., 54 года:
«Настенная версия для отопления и ГВС работает уже 10 лет без аварий, даже при низких параметрах газа в сети, от жесткой воды устройство защищает система antiCa. Хорошая защита при перегреве, точная работа датчика, котел в аварийных ситуациях отключается мгновенно, ошибка блока управления за все время была только однажды, ничего не исправляли, просто сделали сброс».
Иннокентий С., 61 год:
«Приобретали котел в 2006 году в Калининграде. Первые 7 лет проработал без проблем. Потом вышла из строя плата управления, посоветовались со специалистами, протестировали плату и нашли поломку. Предложили запчасть и заменили выгоревший смд-компонент, ремонт обошелся в 300 руб., работает без проблем до настоящего времени. На 12-м году появилась течь из-под трехходового клапана из-за прокладки, заменили прокладку самостоятельно, агрегат проработал еще три года. Теперь стал барахлить газовый клапан – неисправность соленоида, ремонт не дешевый, но решили заменить котел на новый, ведь срок 13 лет эксплуатации, заслуживает того».
Обратите внимание! Таким образом, газовые котлы чешского бренда MORA TOP для отопления и ГВС вот уже два века создают тепло и уют в домах потребителей.
Сегодня это суперсовременное производство с микропроцессорной системой управления, способной настроить точную регулировку технологических процессов в диапазоне температур от 7 до 77 °С в двух контурах – отопления и ГВС.
Бренд: Mora
Категория для инструкций: Газовые настенные котлы
Алфавит (англ.): M
Описание: Настенные газовые проточные котлы MORA серии 5106, 5107, 5108, 5109, 5110, 5111, 5112, 5113, 5114, 5115, 5116, 5117. Инструкция по монтажу, эксплуатации и техническому обслуживанию
Размер файла: 3939417 байт
Инструкция на газовые настенные котлы MORA серии 5106-5117
Быстрый переход:
- Описание настенного газового котла MORA-TOP Helios 24 ST
- Технические характеристики одноконтурного газового котла Гелиос 24 ST
- Функциональная схема турбированного настенного газового котла MORA-TOP Helios 24 ST
- Блок управления газового котла MORA-TOP
- Защитные функции газового котла Helios 24 ST
- Оплата и доставка газового котла MORA-TOP Helios 24 ST
- Инструкция по монтажу и обслуживанию настенного одноконтурного котла MORA-TOP Helios 24 ST
Одноконтурный турбированный газовый котел чешского производителя MORA-TOP мощностью 24 кВт предназначен только для нагрева отопительной воды, а приготовление ГВС может быть обеспечена в водонагревателях косвенного нагрева
типа NTR и NTRR при их подключении к котлу.
Продукты сгорания собираются коллектором продуктов сгорания и при помощи вентилятора отводятся в коаксиальную или двухтрубную систему отвода продуктов сгорания. Для обеспечения безопасной эксплуатации котла, выброс или забор воздуха из/в котёл контролируется маностатом.
Гарантия на турбированный одноконтурный газовый котел MORA-TOP Helios 24 ST: 2 + 1 года!
Эксплуатируемый газовый котел MORA-TOP 2003 года выпуска.

Преимущества газового котла МОРА-ТОП Гелиос 24 кВт
- Высокий КПД — 93% обеспечивает эффективную работу котла
- Высокая надежность регулировочных элементов и автоматики безопасности
- Энергоэффективный насос с частотным регулированием WILO
- Низкое содержание вредных выбросов
- Широкая диапазон регулировки мощности: от 40 до 100 %
- Возможность подключения наружного датчика для эквитермического регулирования
- Возможность подключения комнатного термостата для регулировки температуры в помещении с высокой точностью
- Возможность подключения в каскад при помощи каскадного устройства управления
- OPEN Therm коммуникация
- Функция Antilegionela — антибактериальная функция защиты от бактерий легионеллы в горячей воде
- Адаптирован к белорусским условиям: стабильная работа при напряжении электросети от 155 В до 250 В. При выходе за пределы данного диапазона, котел автоматически отключится. Включение произойдёт, при стабилизации напряжения в указанных границах.
- Дополнительная изоляция обеспечивает низкий уровень шума при эксплуатации газового котла
- Защита вторичного теплообменника от отложений специальной обработкой его внутренней поверхности
Чешский турбированный одноконтурный газовый котёл HELIOS 24 ST сконструирован согласно последних действующих норм ČSN EN a IEC. При разработке особое внимание было уделено безопасности эксплуатации котла, минимизации эксплуатационных расходов при сохранении высокой надёжности, а так же использованы современные технологии и европейские компоненты.
Купить настенный одноконтурный газовый котел MORA-TOP Helios 24 ST
Технические характеристики одноконтурного газового котла Гелиос 24 ST (турбированный)
| Максимальная мощность, кВт | 20,7 |
| Минимальная мощность, кВт | 10,5 |
| КПД, % | 93 |
| Расход топлива при ном.мощности, м3/час | 2,67 |
| Ном.входное избыточное давление газа, мбар | 20 |
| Диаметр форсунки горелки, мм | 1,15 |
| Мин. давление под горелкой, мбар | 2 |
| Макс. давление под горелкой, мбар | 12 |
| Расширительный бак, л | 8 |
| Диапазон температуры для радиаторной / системы подогрева полов, °С |
30 — 80 |
| Макс.температура продуктов сгорания, °С | 111 |
| СО2, % | 8,1 |
| Диаметр дымохода, мм | 100/60 |
| Общая потребляемая эл. мощность, Вт | 104 |
| Температура срабатывания аварийного°С термостата | 105 |
| Вес котла, кг | 28 |
| Высота х Ширина х Глубина, мм | 750 х 400 х 340 |
| Точность регулирования ОВ и ГВС, °С | ±1 |
|
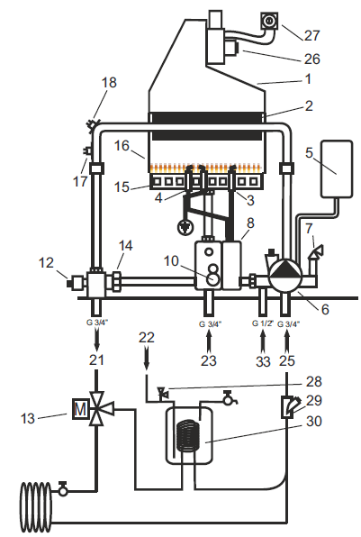
| Функциональная схема настенного газового котла MORA-TOP Helios 24 ST | ||
![]() |
||
| 1 — коллектор продуктов сгорания 2 — теплообменник 4 — электрод зажигания 5 — расширительный бак 6 — насос с атмосферным клапаном 7 — предохранительный клапан ОВ 3 бар 8 — блок управления 9 — датчик протока 10 — газовая арматура |
11 — датчик температуры ГВС 12 — датчик давления 13 — трехходовой клапан 14 — байпас клапан 15 — горелка 16 — камера сгорания 17 — датчик температуры ОВ 18 — аварийный термостат ОВ 19 — ограничитель продуктов сгорания 20 — вторичный теплообменник 21 — выход ОВ 22 — выход ГВС |
23 — вход газа 24 — вход холодной хозяйственной воды 25 — вход ОВ26 — вентилятор продуктов сгорания 27 — маностат 28 — предохранительный обратный клапан на входе ГВС 29 — фильтр на ОВ 30 — бойлер 31 — ограничитель продуктов сгорания 33 — кран для заполнения ОВ |
Блок управления является основной частью одноконтурного газового котла MORA-TOP и имеет следующие функции, определяющие его возможности:
- Защитная функция — обеспечивает защиту от повреждения здоровья и имущества.
- Пользовательская функция — для пользователя.
- Процессорная функция — для обеспечения надёжной работы котла.
После подключения котла блок управления начинает выполнять соответствующие процессорные и защитные функции: контроля внутренней системы, контроля элементов безопасности, регулировки отопительного процесса и процесса приготовления ГВС согласно заданным параметрам. Данная процедура периодически повторяется, реакция на изменения регулирования и безопасности эксплуатации происходит в течение нескольких миллисекунд.

Блок управления постоянно контролирует сигналы всех подключенных элементов:
- датчика давления ОВ
- датчика температуры ОВ
- датчика протока ГВС
- датчика температуры ГВС
- маностата
- аварийного термостата
- комнатного термостата
- термостата продуктов сгорания
- ионизационного электрода
- датчика наружной температуры
Измеренные величины и сигналы немедленно обрабатываются в блоке управления и, в зависимости от результатов, плавно увеличивается или уменьшается количество газа, подаваемого на горелку котла.
Блок управления регулирует работу: газового вентиля, трёхходового клапана, циркуляционного насоса, вентилятора продуктов сгорания, запального электрода (трансформатора), модулятора горелки.
Купить чешский одноконтурный турбированный газовый котел мощностью 24 кВт в Минске
Защитные функции газового котла Helios 24 ST
Одноконтурный газовый котел Helios 24 ST оснащён функциями, защищающими его от повреждений.
1) Защита при неисправности датчиков
Блок управления котла постоянно контролирует параметры и состояние присоединённых датчиков. При выходе за установленные параметры появится сигнал сбоя и котёл отключится. Если любой датчик зафиксирует величину, которая не соответствует его параметрам (например, в случае замыкания или разъединения датчика), произойдёт выключение котла. При этом состояние неисправности отобразится на дисплее соответствующим кодом.
2) Защита от перегрева
Электроника защищает котёл от перегрева на основании величин, измеренных датчиками температуры.
3)Защита при помощи датчика температуры отопительной воды
В случае, если температура отопительной воды превысит 95°C, включится циркуляционный насос, который продолжит работу до тех пор, пока температура не понизится до 80°C. При активации этой защиты будет перекрыт доступ газа к горелке котла.
4) Защита при помощи датчика температуры ГВС
В случае, если температура ГВС превысит 75°C, включится циркуляционный насос, который продолжит работу до тех пор, пока температура не понизится до 60°C. При активации этой защиты будет перекрыт доступ газа к горелке котла.
5) Защита отвода продуктов сгорания
Газовый котел Helios (Гелиос) 24 STс закрытой камерой сгорания, которая защищена от попадания продуктов сгорания в помещение обеспечивается маностатом воздуха. Маностат воздуха используется в газовых котлах с
закрытой камерой сгорания с принудительным отводом продуктов сгорания. В случае выключения вентилятора происходит отключение маностата воздуха. В случае, если блок управления даст команду на запуск вентилятора, то произойдет включение маностата воздуха.
6) Защита от замерзания и функция деблокирования
Защита от замерзания
- Данная функция защищает котёл от замерзания в нём воды, является активной в режиме STAND-BY (режим готовности).
- Как только температура ОВ опустится ниже +5°C, включится циркуляционный насос, который будет работать до тех пор, пока температура ОВ не достигнет +10°C.
- Если температура ОВ опустится ниже +5°C, произойдёт включение котла на минимальную мощность. Когда температура достигнет +8°C котёл отключится, функция добега насоса останется активной.
- Функция Antilegionela — при подключении бойлера ГВС с датчиком ГВС вода будет нагреваться в бойлере до 60 ° C 1 раз в течение 7 дней.
- При отключении котла от электрической сети или подвода газа, защита от замерзания не работает.
В случае использования бойлера косвенного нагрева защита от замерзания работает таким же способом.
Функция деблокирования
Данная функция не допускает заклинивания ротора насоса и трёхходового вентиля. Если насос или трёхходовой вентиль не запускались более 24 часов, блок управления их включит на несколько секунд и не допустит заклинивания.
- Если котёл отсоединён от электрической сети, функция деблокирования не работает.
- Блок управления выполняет 1 раз в 24 часа собственный сброс системы защиты от блокировки.
- В случае использования бойлера косвенного нагрева функция деблокирования работает таким же способом.
Купить чешский одноконтурный турбированный газовый котел у официального представителя завода MORA-TOP в Беларуси — ООО «Торговый дом АТМОС» в рассрочку на 8 месяцев с доставкой по Минску и Беларуси выгодно! Приглашаем в магазин электрических котлов в Минске улица Каменногорская, 47. Поможем рассчитать мощность одноконтурного газового котла для отопления дома или квартиры.
Наша компания оказывает следующие услуги:
- установка и монтаж экономного настенного газового котла отопления мощностью 24 кВт чешского производителя MORA-TOP;
- бесплатная доставка настенного газового котла отопления по Беларуси;
- предлагаем купить газовый котел для отопления частного дома, воспользовавшись нашей фирменной рассрочкой на 4 месяца 0%.
Обращаем внимание, что корректная и длительная работа газового котла зависит от правильности его установки и ввода в эксплуатацию. Поэтому очень важно обратиться в уполномоченный сервисный центр за квалифицированной помощью по данным вопросам. При несоблюдении требований по установке и техническому обслуживанию настенного одноконтурного турбированного газового котла MORA TOP Helios 24 ST гарантийные обязательства со стороны производителя в случае технической неисправности распространяться не будут.
Гарантия на турбированный одноконтурный газовый котел МОРА — ТОП Гелиос 24
ST
: 2 +1 года!
Содержание
- Основные виды газовых котлов Мора Топ — характеристики и инструкции
- Профилактические ремонтные работы
- Установка проточного водонагревателя
- Панель управления
- Обзор напольных котлов Mora
- Проведение монтажных работ
- Из-за чего стоит покупать котёл марки Mora
- Напольные
- Встроенные функции надежности
- Особенности котлов Mora TOP
- Особенности
- Основные виды газовых котлов Mora TOP
- Особенности газовых колонок Mora Top
- Преимущества и недостатки
- Наслоение накипи в теплообменнике
- Обзор популярных моделей
- Vega 10
- Vega 10 E
- Mora Vega 13
- Рейтинг ТОП-5 настенных одноконтурынх котлов
- Buderus Logamax U072-18
- BAXI LUNA-3 1.310 Fi
- BAXI LUNA Platinum+ 1.32
- MORA-TOP Meteor Plus PK24SK
- Protherm Пантера 25 KTO (2015)
- Вывод котла из эксплуатации
- Профилактика. Техническое обслуживание. Техника безопасности при эксплуатации котла
Основные виды газовых котлов Мора Топ — характеристики и инструкции
Профилактические ремонтные работы
Для корректной работы водонагреватель Мора нуждается в регулярном обслуживании:
Если же после диагностики вы не смогли найти причину неисправности, вызывайте специалистов.
Данная инструкция на русском языке предназначена для отопительного котла Mora-Top Meteor, описывает принцип работы и основные моменты эксплуатации устройства.
Производитель настойчиво рекомендует перед включением отопительного котла внимательно изучить настоящую инструкцию.
Установка проточного водонагревателя
Перед монтажом колонки необходимо определиться с помещением и местом установки. Комната должна иметь вентиляцию, а стена быть из негорючего материала . Установка колонки обычно не вызывает затруднений и состоит из следующих шагов:
крепление прибора к стене. Используются штатные скобы из комплекта поставки
Обратите внимание на прочность стены и ее горючесть;
подводка труб холодной и горячей воды. Перед вводными патрубками желательно установить запорную арматуру;. Совет специалиста: между стеной и корпусом колонки нужно проложить прокладку из негорючего материала!
Совет специалиста: между стеной и корпусом колонки нужно проложить прокладку из негорючего материала!
Панель управления
Панель управления в котлах MORA 5118, 5120, 5121,5122, 5124, 5125 расположена в нижней части котла за кожухом и будет доступна, если кожух приподнять вверх, приблизительно, на 100 мм.

Кнопка «ОN/ОFF»
При нажатии на кнопку «ОN/ОFF» котёл включается или выключается. При включении котла кнопка будет светиться.
Ручка регулировки температуры отопительной воды
Предназначена для установки необходимой температуры отопительной воды в диапазоне от 30 до 80°С. Если функционирует комнатный термостат, то температура отопительной воды устанавливается на максимальную величину.
Переключатель режимов «ЛЕТО-ЗИМА» (установлен только на комбинированных котлах)
При установке переключателя в положение «ЗИМА» котёл подготовлен к работе — нагрева отопительной воды или хозяйственной воды.
При установке переключателя в положение «ЛЕТО» котёл готов только к процессу нагрева хозяйственной воды. Данный режим применяется в основном в летний период, когда нет необходимости отапливать помещения.
Термометр
Показывает температуру отопительной воды на выходе из котла.
У котлов MORA 5119 и 5123
— термометр установлен на кожухе котла
— кнопка «ON/OFF» и кнопка регулировки отопительной воды находятся слева, под котлом
Обзор напольных котлов Mora
Напольные газовые отопительные котлы Mora Top представлены более чем в десяти модификациях, основным отличием которых является тип используемой горелки и топочной камеры.
Наддувная горелка – оснащаются котлы закрытого типа. Имеют автоматический блок розжига, автоматически запускающий котел в случае отключения электроэнергии или падения давления газа.В устройстве присутствует два отдельных контура. Первичный теплообменник изготавливается из стали, для производства второго используют медь. Расход газа минимален. Это особенно видно при смене топлива. Переоборудование на сжиженный газ осуществляется с помощью замены горелок.
Для увеличения производительности и теплоотдачи рекомендуется использовать антифриз. Теплообменник и внутреннее устройство разработаны с учетом применения этой жидкости в качестве теплоносителя.

Как показывает практика, чешский водогрейный энергонезависимый напольный проточный газовый котел отопления Mora Top является оптимальным решением для отопления загородных домов. Отсутствие сложной автоматики, зависимых от электричества узлов, высокая производительность – все это отличает оборудование этой серии.
Проведение монтажных работ
Газовая техника Mora продумана таким образом, чтобы монтаж и обслуживание котлов были максимально простыми и легкими. Все энергозависимые модели имеют функцию самодиагностики. Информация обо всех нарушениях выводится на ЖК-дисплей. Котлы укомплектованы оборудованием Mora. В результате автоматика, горелка и другие узлы обеспечивают стабильную и продолжительную работу.
Пусконаладка и регулировка котла выполняется следующим образом:
Энергонезависимые агрегаты не имеют функцию самодиагностики, автоматического розжига пламени и т.д. Поэтому перед запуском и вводом оборудования в эксплуатацию представитель компании должен убедиться в соблюдении всех рекомендаций относительно монтажа. Обязательным является установка системы водоподготовки и группы безопасности, может понадобиться подключить расширительный бак и циркуляционный насос.


Чешские газовые котлы Mora в целом запускаются без сложностей, но бывают исключения, в основном связанные с нарушением транспортировки или монтажа.
Одной из распространенных неисправностей двухконтурного котла является выход из строя термопары. После замены работоспособность оборудования полностью возвращается.
Из-за чего стоит покупать котёл марки Mora
В котлах компании Мора есть то, что зачастую упускают другие производители – понимание сложностей и особенностей работы в отечественных условиях. Потенциального покупателя также привлекает возможность выбора подходящей модели.
Представлен огромный модельный ряд: от 15 до 750 кВт. Можно подобрать полностью автоматическую установку и классический котел без наличия сложной автоматики. Простые правила эксплуатации также обеспечивают популярность чешских моделей Мора.
Напольные
Атмосферные напольные котлы MORA SА 40 G рекомендуются для отопления объектов, расположенных в районах с нестабильным электроснабжением. Модели серии Classic укомплектованы нержавеющим горелочным устройством, которое устойчиво работает даже с низкими параметрами газа. Они относятся к классу чугунных котлов и зарекомендовали себя надежными, недорогими и достаточно экономичными теплогенераторами.
Обратите внимание! По мнению покупателей, сегодня в России они являются наиболее распространенными среди аналогичных устройств. Горелочное устройство отличается простотой и эксплуатационной надежностью. Его преимуществом является бесшумная работа и низкая энергоемкость
Разработчики обеспечили котел Mora максимальной устойчивостью к частым перепадам давления в газовой магистрали, включая режимы с низким входным давлением газа
Его преимуществом является бесшумная работа и низкая энергоемкость. Разработчики обеспечили котел Mora максимальной устойчивостью к частым перепадам давления в газовой магистрали, включая режимы с низким входным давлением газа
Горелочное устройство отличается простотой и эксплуатационной надежностью. Его преимуществом является бесшумная работа и низкая энергоемкость. Разработчики обеспечили котел Mora максимальной устойчивостью к частым перепадам давления в газовой магистрали, включая режимы с низким входным давлением газа.
Долговечность работы устройства обеспечена комплектацией чугунным теплообменником, который не страдает низкотемпературной коррозией, как стальной, и не прогорает, как медный. Агрегат обладает функцией контроля пламени горелки с применением термоэлемента, предотвращающего утечку газа. Предохранитель обратной тяги работает в системе защиты и не допускает попадания дымовых газов в помещение. Электронное регулирование с ограничителем температуры в бойлере контролирует уровень нагрева циркуляционной воды, а в случае перегрева при аварийной ситуации подаст сигнал на клапан-отсекатель для перекрытия поступления газа в котел и вывода его из эксплуатации.
Встроенные функции надежности
Надежность агрегатам такой конструкции обеспечивают следующие функции котлов:
Обратите внимание! Когда забит циркуляционный контур, можно обеспечить движение в первичном бойлере байпасной линией
Особенности котлов Mora TOP
Устройство начинает работу включением главной горелки, которая разжигается пьезозапальником в зависимости от скорости циркуляционной воды, начиная с 5,5 л/мин. Этот показатель соответствует минимальной мощности агрегата, номинальная достигается при протоке 8 л/мин. Агрегат поставляется без функции Вy-pass, поэтому при запуске системы оставляют открытым вентиль хотя бы на одном радиаторе. Регулировка технологическим процессом протекает в нескольких режимах, но стартует всегда одинаково — с включения насоса.


Основная регулировка производится капиллярным термостатом в диапазоне сетевой воды 7–77 °C. Более эффективная регулировка будет выполняться комнатным термостатом 220 В, в зависимости от установленной пользователем температуры внутреннего воздуха в помещении. При этом этот термостат подключается последовательно с капиллярным.
Для подготовки ГВС котел Mora TOP можно присоединить к бойлеру косвенного нагрева при помощи дополнительного оборудования. В этом случае регулирование происходит на основании требования, поступившего от термостата ГВС бойлера (ON/OFF). Капиллярный и комнатный термостат остаются неподключенными, температура воды регулируется на уровне 85 °C. Если капиллярный установлен на позиции «снежинка», агрегат находится в режиме защиты от замерзания, и как только температура сетевой воды опустится ниже, начнется циркуляция воды внутреннего контура с подогревом.
Особенности
Основные виды газовых котлов Mora TOP
Основные модификации газовых агрегатов разделяются по принципу установки – настенные и напольные, по конструкции топки — открытые и закрытые, по способу вывода дымовых газов существует три варианта.

Разновидности MORA-TOP TITAN:
Важно! Котел имеет функцию для предотвращения замерзания воды в контуре отопления. При снижении температуры воды в сетевом контуре ниже +5 °С он начнет греть ее, чтобы обезопасить систему от подмерзания
Особенности газовых колонок Mora Top
Симпатии покупателей удалось завоевать благодаря ряду уникальных характеристик, присущих современным моделям:

Обратите внимание! Рыночная цена большинства моделей не превышает 16 тысяч рублей.* Потребительские свойства колонки «Мора» выше по сравнению с существующими аналогами
Преимущества и недостатки
Отопление дома и горячее водоснабжение — два главных вопроса, которые сможет решить любой покупатель, который решится на приобретение газовых колонок. Экономичность, компактные размеры относят к главным положительным сторонам устройств.

Есть и другие характеристики, способные привлечь покупателей:

Интересно! Из недостатков — сложно найти детали к некоторым моделям. Тем более — если выпущены они достаточно давно. Газовые колонки «Мора» стоят дешевле существующих аналогов, но некоторые покупатели считают и существующие цены завышенными.

Наслоение накипи в теплообменнике
Теплообменники фирмы Мора изготовлены из качественной меди, толщиной 1 мм. Внутри трубок вода нагревается и на их стенках скапливается накипь. Это приводит к увеличению времени нагрева и снижению напора. Главным признаком засорения труб теплообменника будет то, что вода из крана вытекает активно, а через колонку напор слабее.
Чтобы очистить накипь своими руками, следует снять кожух с водонагревателя, слить воду и открутить накидные гайки с выходов теплообменника. После этого в трубки с помощью шланга заливается специальная жидкость для растворения солей, которая продается в хозяйственном магазине. Вместо этого можно использовать раствор с лимонной кислотой или уксусом. Необходимо подождать несколько часов для полной очистки.
Для профилактики температуру нагрева надо выставлять не более, чем 50 градусов. Если температура выше, накипь оседает особо активно.
Обзор популярных моделей
Vega 10
| Технические характеристики | |
| Тип водонагревателя | проточный |
| Способ нагрева | газовый |
| Производительность, л/мин | 10 |
| Тепловая мощность, кВт | 17,30 |
| Давление на входе, атм | от 0,20 до 10 |
| Тип камеры сгорания | открытый |
| Тип розжига | пьезоподжиг |
| Газ-контроль | есть |
| да | |
| Управление водонагревателем | механическое |
| есть | |
| Защита | от перегрева |
| Установка | |
| Размеры (ШхВхГ), мм | 320x592x26 |
Рыночная стоимость колеблется от 11 500 до 13 800 рублей.
На основе отзывов пользователей мы выявили сильные и слабые стороны колонки.
Преимущества:
Vega 10 E
| Технические характеристики | |
| Тип водонагревателя | проточный |
| Способ нагрева | газовый |
| Производительность, л/мин | 10 |
| Тепловая мощность, кВт | 17,30 |
| Давление на входе, атм | от 0,20 до 10 |
| Тип камеры сгорания | открытый |
| Тип розжига | электроподжиг |
| Газ-контроль | есть |
| Автоматическое поддержание температуры воды на выходе | да |
| Управление водонагревателем | механическое |
| Ограничение температуры нагрева | есть |
| Защита | от включения без воды, от перегрева |
| Установка | вертикальная, нижняя подводка, способ крепления: настенный |
| Размеры (ШхВхГ), мм | 320x592x26 |
Цена от 12 700 до 22 000 рублей.
Многие пользователи сошлись лишь на положительных качествах, таких как:
Mora Vega 13
| Технические характеристики | |
| Тип водонагревателя | проточный |
| Способ нагрева | газовый |
| Производительность, л/мин | 13 |
| Тепловая мощность, кВт | 22,60 |
| Давление на входе, атм | от 0,20 до 10 |
| Тип камеры сгорания | открытый |
| Тип розжига | пьезоподжиг |
| Газ-контроль | есть |
| Автоматическое поддержание температуры воды на выходе | да |
| Управление водонагревателем | механическое |
| Ограничение температуры нагрева | есть |
| Защита | от перегрева |
| Установка | вертикальная, нижняя подводка, способ крепления: настенный |
| Размеры (ШхВхГ), мм | 400x659x261 |
Ценовая политика торговых точек разнится: от 12 500 до 20 4000 рублей.
Газовые проточные водонагреватели Vega предназначены для нагрева хозяйственной воды в домашних условиях и на предприятиях. В водонагревателях данного типа установленная температура воды автоматически поддерживается на данном уровне, независимо от количества (объема) отбираемой воды.
Рейтинг ТОП-5 настенных одноконтурынх котлов
Среди одноконтурных настенных котлов выгодно отличаются следующие модели:
Buderus Logamax U072-18
Фирма Buderus — «дочка» всемирно известного концерна Bosh. Специалисты отмечают высокое качество продукции, не уступающее изделиям головной компании. Котел Buderus Logamax U072-18 — одноконтурный агрегат мощностью 18 кВт, что подойдет для обогрева дома 160-180 кв. м.
Производитель предупреждает, что при жесткости воды больше 16°dGH понадобится использовать умягчители или специальные фильтры.
Параметры котла:
Агрегат может быть присоединен к внешнему бойлеру косвенного нагрева, что позволит обеспечивать жилище горячей водой.
BAXI LUNA-3 1.310 Fi
Фирма BAXI считается итальянской, хотя предприятия разбросаны по всей Европе, а головное представительство находится в Нидерландах. Котел LUNA-3 1.310 Fi — конвекционный агрегат мощностью 31 кВт.
Это солидное устройство, способное отапливать жилой дом или офис площадью до 310 кв. м. Высокий КПД (93,1%) обеспечивает экономию топлива и позволяет получить от котла максимальную производительность.
Характеристики:
По утверждениям производителя, срок службы котла составляет не менее 10 лет при гарантии на 2 года.
BAXI LUNA Platinum+ 1.32
Еще один представитель итальянской компании — конденсационный одноконтурный котел мощностью 34,8 кВт. Его КПД составляет 105,7%, что не более, чем неуклюжий маркетинговый ход.

В конструкцию агрегата добавлена ступень предварительного подогрева, позволяющая снизить интенсивность работы горелки и сэкономить топливо. Однако, физическая возможность конденсации с выделением тепла возможна только в определенных и довольно узких условиях, невозможных в России.
Параметры агрегата:
Цена конденсационного котла BAXI LUNA Platinum+ 1.32 составляет в среднем 76-80 тыс. руб.
Учитывая бесполезность дополнительной ступени нагрева в большинстве регионов России, следует тщательно взвешивать необходимость такой покупки.
MORA-TOP Meteor Plus PK24SK
Изделие чешских производителей мощностью 23,7 кВт. Это оптимальное значение для помещения площадью 220-240 кв. м., что соответствует размерам большинства коттеджей.
Представляет собой одноконтурный газовый настенный котел атмосферного типа. Нуждается в подключении к общему дымоходу печного типа.
Его характеристики:
Пользователи отмечают высокие эксплуатационные качества и надежность агрегата, стабильность работы.
Protherm Пантера 25 KTO (2015)
Бренд Protherm является детищем компании Vaillant Group, и создавался специально для производства недорогих качественных газовых котлов. Изначально продукция была ориентирована на рынок России и стран СНГ.
Котел Protherm Пантера 25 KTO (2015) имеет мощность 25 кВт, что подойдет для обогрева 250 кв.м. Отличается низким потреблением топлива и стабильной, безотказной работой.
Основные характеристики:
При подключении внешнего бойлера появляется возможность обеспечивать помещение горячей водой, что делает агрегат полнофункциональным устройством.
Вывод котла из эксплуатации
Долговременный
Долговременный вывод котла из эксплуатации выполняется при уходе и ремонте:
перевести кнопку ON/OFF в положение «ВЫКЛЮЧЕНО»
вытащить вилку подводящего шнура из розетки
закрыть краны подвода газа и воды
Кратковременный
перевести кнопку ON/OFF в положение «ВЫКЛЮЧЕНО»
оставить вилку подводящего шнура в розетке
краны подвода газа и воды оставить открытыми
Профилактика. Техническое обслуживание. Техника безопасности при эксплуатации котла
Перед началом эксплуатации Пользователь обязан внимательно и подробно изучить «Руководство по эксплуатации.
Недопустимы любые манипуляции и операции с котлом, не отвечающие требованиям «Руководства по эксплуатации».
Монтаж, ввод в эксплуатацию, профилактические осмотры и устранение неисправностей должны производится только обученными специалистами уполномоченной производителем сервисной организации, имеющей необходимые государственные допуски и лицензии. Сведения обо всех манипуляциях и операциях с котлом должны быть занесены в «Гарантийный талон».

Производитель рекомендует ежегодно, перед началом отопительного сезона, приглашать специалистов сервисной организации для проведения профилактического осмотра котла.
В ходе эксплуатации Пользователь должен периодически контролировать его работу.
Газовые котлы MORA не должны использоваться для целей, не указанных в «Руководстве по эксплуатации».
Котел необходимо отключить, если в помещении, где он установлен, ведутся работы, которые могут изменить среду (например, работы с красками, клеями и т.п.) Включить котел и пользоваться им можно только после окончания таких работ и тщательного проветривания помещения.

- Регистрация
- Войти
Инструкции » Водонагреватели / Котлы » MORA TOP
|
Всего инструкций в разделе: 14 |
|
Мануал MORA TOP от газового и электрического котла, бойлера, бытового и промышленного назначения сожержит важную информацию о подключении и безопасном использовании, режимах работы и регламенте обслуживания. |
| инструкция | устройство | размер |
| MORA TOP Vega 10 | газовый проточный водонагреватель | 657.92 kB |
| MORA TOP Vega 10E | газовый проточный водонагреватель | 2.05 MB |
| MORA TOP Vega 13 | газовый проточный водонагреватель | 657.92 kB |
| MORA TOP Vega 13E | газовый проточный водонагреватель | 2.05 MB |
| MORA TOP Vega 16 | газовый проточный водонагреватель | 657.92 kB |
| MORA TOP Vega 16E | газовый проточный водонагреватель | 2.05 MB |
| MORA TOP Electra Comfort 08K | настенный электрический котёл | 1.54 MB |
| MORA TOP Electra Comfort 15K | настенный электрический котёл | 1.54 MB |
| MORA TOP Electra Comfort 24K | настенный электрический котёл | 1.54 MB |
| MORA TOP Electra Light | настенный электрический котёл | 1.39 MB |
| MORA TOP Meteor | настенный газовый котёл | 1.57 MB |
| MORA TOP Meteor Plus | настенный газовый котёл | 2.32 MB |
| MORA TOP Sirius | настенный газовый котёл | 2.81 MB |
| MORA TOP Titan | настенный газовый котёл | 1004.92 kB |
Что удобнее для чтения книг?
Планшет
Электронная книга
Смартфон
Книга в бумажном переплёте
Не читаю книг
|
|
© 2010- ManualBase.ru
- Статьи
- О сайте
- Помощь
- Контакты
- Пользовательское соглашение
- Политика обработки персональных данных
© 2010- ManualBase.ru







